
Sign up for our Property Alert Service and get notified as soon as properties that match your requirements become available on the market.
***Attention First Time Buyers, Two Bedroom End Town House with Pleasant Rear Garden, No Chain Delay***Adams Real Estate are delighted to market this well presented two bedroom end town house, offered with no chain delay, making an early inspection a must. The property is conveniently located for all amenities including shops, schooling and transport links.
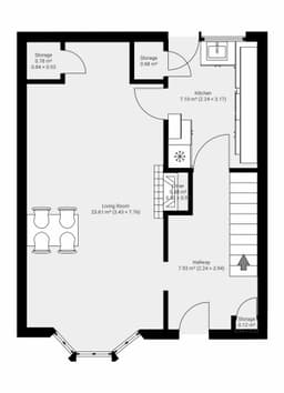
Features include entrance hall, lounge/diner and kitchen to the ground floor. Landing, two double bedrooms and family bathroom to the first floor. Externally, gardens to front and rear. Council Tax A. EPC to Follow.

